产品中心
![]()
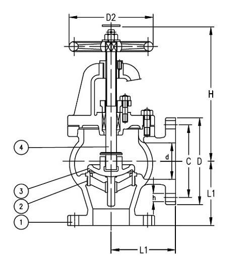
主要材质:
阀体:铸铁(FC200)
阀盖:铸铁(FC200)
填料压盖:青铜(BC6)或不锈钢(2Cr13)
阀杆:C3771BD(黄铜)或SUS403
阀座:青铜(BC6)或不锈钢(2Cr13,SCS2)
阀瓣:青铜(BC6)或不锈钢(2Cr13,SCS2)
垫圈:非石棉
主要尺寸表(mm):
IMPA Code | Size | L1 | D | C | No of bolt hole | h | t | H | D2 | Weight |
751141 | 50 | 120 | 155 | 120 | 4 | 19 | 20 | 255/255 | 160 | 18.2 |
751142 | 65 | 130 | 175 | 140 | 4 | 19 | 22 | 270/260 | 200 | 25.3 |
751143 | 80 | 140 | 185 | 150 | 8 | 19 | 22 | 275/270 | 200 | 27.5 |
751144 | 100 | 160 | 210 | 175 | 8 | 19 | 24 | 315/305 | 250 | 40.6 |
751145 | 125 | 180 | 250 | 210 | 8 | 23 | 24 | 360/350 | 280 | 69.8 |
751146 | 150 | 205 | 280 | 240 | 8 | 23 | 26 | 405/390 | 315 | 81.2 |
751147 | 200 | 230 | 330 | 290 | 12 | 23 | 26 | 475/450 | 355 | 124 |
751148 | 250 | 290 | 400 | 355 | 12 | 25 | 30 | 570 | 450 | 211 |
751149 | 300 | 320 | 445 | 400 | 16 | 25 | 32 | 645 | 500 | 293 |
